Noticias
Apple da más detalles sobre su futurista campus de Cupertino

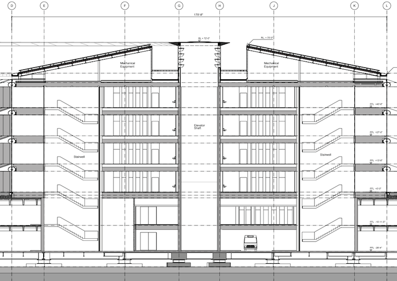
Hace unos meses Steve Jobs presentó en el ayuntamiento de Cupertino el proyecto más ambicioso de Apple: la construcción de un gigantesco y futurista campus empresarial que albergará las nuevas oficinas de la empresa.
Ahora se han presentado más detalles sobre ese edificio, que entre otras cosas tendrá restaurantes, gimnasio y un auditorio corporativo con capacidad para 1.000 personas.
La mayoría de los edificios estarán alimentados energéticamente por una planta energética con baja emisión de carbono, aunque también usarán energía solar, y las marquesinas fotovoltaicas estarán situadas en el techo del edificio.
Como indican en Apple Insider, el ayuntamiento de la ciudad ha aprobado el proyecto aunque algunos ciudadanos han expresado su preocupación por el impacto que las nuevas instalaciones tendrán en el tráfico o el ritmo de vida de la ciudad de Cupertino.
Apple espera abrir el campus en 2015, y la empresa ha presentado un presupuesto en el que habrá un 73% de incremento en gastos que seguramente se deban a la ejecución de este impresionante proyecto.
-
A FondoHace 4 díasLos 10 mejores reproductores de vídeo para Android (gratis y sin publicidad)
-
PrácticosHace 24 horasCómo mejorar la vida útil de la batería de un portátil
-
PrácticosHace 7 díasSeis usos de un pendrive USB más allá de almacenar archivos
-
GuíasHace 6 díasCómo arrancar un PC Windows en el menor tiempo posible










